HCII mały przenośnik paska
Cat:Przenośnik obracania paska
Poprzez współpracę między kołem prowadzącym a szyną prowadzącą pasek można wyciągnąć i kierować do biegania. Cechy: nis...
Zaawansowana struktura, wysokiej jakości wydajność, łatwa w użyciu, wysoka niezawodność i trwałość.
Maszyna obracająca taśmę obrotową jest powszechnym sprzętem do przenoszenia, głównie używanym do przenoszenia materiałów z jednej linii przenośnika pasa do kolejnego 90 stopni lub 180 stopni przenośnika odwracającego pasa. Składa się z komponentów, takich jak pasy, ramy, wałki napędowe, rolek, palety zawierające obciążenie, rolki powrotne i urządzenia napinające. Materiał przenośnika pasa obracającej pasa obejmuje różne materiały, takie jak PVC, PU, PVK itp. Oprócz tego, że jest używany do przekazywania zwykłych materiałów, może również spełniać transport materiałów o specjalnych wymaganiach, takich jak oporność na olej, kwas i oporność na korozję alkaliczną oraz przeciwstatyczne.

Poprzez współpracę między kołem prowadzącym a szyną prowadzącą pasek można wyciągnąć i kierować do biegania. Cechy: nis...
Poprzez współpracę między kołem prowadzącym a szyną prowadzącą pasek można wyciągnąć i kierować do biegania.
Cechy: niski koszt, lekki obciążenie i niski prędkość.
Wymiar standardowy
HCII-S
| Szerokość paska | 200 | 300 | 400 | 500 |
| Szerokość przenośnika | 520 | 620 | 720 | 820 |
| Kąt | 90 | Moc silnikowa | 90W 、 120W 、 200W |
| Wysokość | 270 do 1100 stóp wysokości | Moc | AC100V (jednofazowa) · AC200V (jednofazowa) · AC200V (trójfazowa) |
| Prędkość | Ustalona/zmienna prędkość | Pasek | Pas poliuretanowy |
| Zdolność | 10 kg/zestaw (po rozproszonym obciążeniu poziomym) |
Jako wyroby w torbie, prosimy o 40% wybicia danych o zdolnościach.
HCII-M
| Szerokość paska | 300 | 400 | 500 | 600 |
| Szerokość przenośnika | 680 | 780 | 880 | 980 |
| Kąt | 90 | Moc silnikowa | 200W 、 400 W. |
| Wysokość | Proszę określić, nogi są opcjonalne | Moc | AC200V (trójfazowy) |
| Prędkość | Ustalona prędkość | Pasek | Pas poliuretanowy |
| Zdolność | 40 kg/zestaw (po rozlepionym obciążeniu poziomym) |
Jako wyroby w torbie, prosimy o 40% wybicia danych o zdolnościach.
Prędkość paska HCII-S
| Stosunek | Nr prędkości | Ustalona prędkość 50/60 (Hz) (m/min) | Prędkość nr | Zmienna prędkość 50/60 (HZX (m/min) |
| 1/180 | T1 | 16./1.9 | H1 | 0,11 ~ 2,1 |
| 1/2050 | T2 | 1.8/2.2 | H2 | 0,13 ~ 2,5 |
| 1/2020 | T3 | 2.3/2.8 | H3 | 0,16 ~ 3,1 |
| 1/90 | T4 | 3.1/3.7 | H4 | 0,21-4,2 |
| 1/75 | T5 | 3.8/4.5 | H5 | 0,25 ~ 5,0 |
| 1/60 | T6 | 4.7/5.6 | H6 | 0,31 ~ 6.2 |
| 1/50 | T7 | 5.6/6.7 | H7 | 0,38 ~ 7,5 |
| 1/36 | T8 | 7.8/9.4 | H8 | 0,52-10,4 |
| 1/30 | T9 | 9.3/11.2 | H9 | 0,63 ~ 12,5 |
| 1/25 | T10 | 11.3/13.5 | H10 | 0,75 ~ 15,0 |
| 1/18 | T11 | 15.6/18.7 | H11 | 1,04 ~ 20,8 |
| 1/15 | T12 | 18.8/22,5 | H12 | 1,25 ~ 25,0 |
| 1/12.5 | T13 | 22,5/27,0 | H13 | 1,50 ~ 30,0 |
Prędkość paska HCII-M
| Stosunek | Nr prędkości | Ustalona prędkość 50/60 (Hz) (m/min) |
| 1/2020 | T1 | 15/18 |
| 1/90 | T2 | 20/24 |
Obliczanie prędkości stałej prędkości: prędkość obrotowa 1500/1800 obr/min (50/60 Hz), wałek napędowy ф82,3, Wydajność jazdy: 95%
Obliczanie prędkości zmiennej prędkości: prędkość obrotowa 2000 obr / min (50; 60 Hz), wałek napędowy ф82,3, Wydajność jazdy: 95%
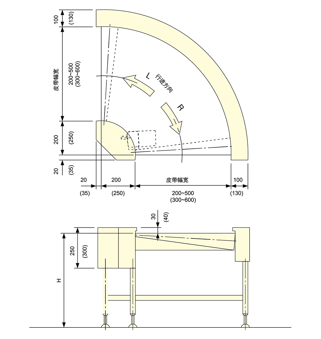
Rysunek

Poprzez współpracę między kołem prowadzącym a paskiem prowadzącym pasek jest ciągnięty i kierowany do biegania. Cechy: ...
Poprzez współpracę między kołem prowadzącym a paskiem prowadzącym pasek jest ciągnięty i kierowany do biegania.
Cechy: Niska hałas, duża prędkość, a nawet siła paska.
Wymiar standardowy
| Szerokość paska | 200 | 300 | 400 | 500 | 600 | 700 | 800 |
| Szerokość przenośnika | 520 | 620 | 720 | 820 | 920 | 1020 | 1120 |
| Kąt | 90 | Moc silnikowa | 200 W 、 370W 、 750W |
| Wysokość | 380 do 1100 stóp wysokości z | Moc | A (jednofazowa AC110V) B (jednofazowy AC200V) C (trójfazowy AC200V/380V) |
| Prędkość | Ustalona prędkość | Pasek | Pas poliuretanowy |
| Zdolność | 100 kg/zestaw (po rozproszonym obciążeniu poziomym) |
Jako wyroby w torbie, prosimy o 40% wybicia danych o zdolnościach.
Prędkość paska
| Stosunek | Nr prędkości | Stała prędkość 50/60 (Hz) (m/min) | Nr prędkości | Zmienna prędkość 50 Hz (m/min) |
| 1/180 | T1 | 1.6/1.9 | H1 | 0,09-1.7 |
| 1/2050 | T2 | 1.9/2.3 | H2 | 0.1-2.1 |
| 1/2020 | T3 | 2.4/2.9 | H3 | 0,13-2.6 |
| 1/90 | T4 | 3.2/3.8 | H4 | 0,17-3,5 |
| 1/75 | T5 | 3.8/4.6 | H5 | 0,2-4,2 |
| 1/60 | T6 | 4.9/5.8 | H6 | 0,25-5.1 |
| 1/50 | T7 | 5.8/6.9 | H7 | 0,3-6.2 |
| 1/36 | T8 | 8/9.5 | H8 | 0,4 ~ 8,6 |
| 1/30 | T9 | 9.5/11.5 | H9 | 0,5-10,4 |
| 1/25 | T10 | 11.5/13.7 | H10 | 0,6-12.4 |
| 1/18 | T11 | 15,9/19 | H11 | 0,9-17.3 |
| 1/15 | T12 | 19.3/22.3 | H12 | 1 ~ 20,6 |
| 1/12.5 | T13 | 23/27.4 | H13 | 1.2-24.8 |
| 1/7.5 | T14 | 38,3/45,8 | H14 | 2.1-41.4 |
| 1/5 | T15 | 57,5/68,6 | H15 | 3.1-62 |
| 1/3.6 | T16 | 79,9/95.4 | H16 | 4.3-86.1 |
| 1/3 | T17 | 95.8/114.4 | H17 | 5.2-103.4 |
Obliczanie prędkości stałej prędkości: prędkość obrotowa 1500/1800 obr/min (50/60 Hz), wałek napędowy ф82,3, Wydajność jazdy: 95%
Obliczanie prędkości zmiennej prędkości: prędkość obrotowa 2000 obr / min (50; 60 Hz), wałek napędowy ф82,3, Wydajność jazdy: 95%
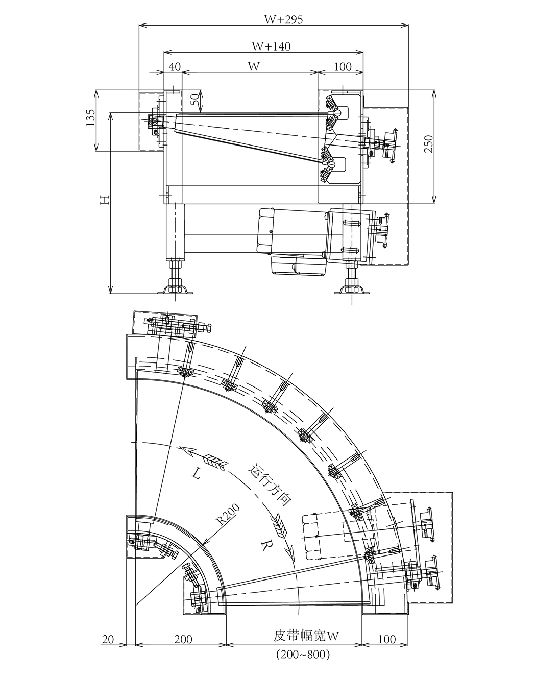
Rysunek

Poprzez współpracę między łańcuchem a kołem prowadzącym pasek można ciągnąć i kierować. Cechy: Ciężkie obciążenie i szy...
Poprzez współpracę między łańcuchem a kołem prowadzącym pasek można ciągnąć i kierować.
Cechy: Ciężkie obciążenie i szybka prędkość.
Wymiar standardowy
| Szerokość paska | 400 | 600 | 800 | 1000 | 1200 | 1400 | 1600 | 1800 |
| Szerokość przenośnika | 525 | 725 | 925 | 1125 | 1325 | 1525 | 1725 | 1925 |
| Kąt | 90 | Moc silnikowa | 370 W 、 750W 、 1,1 kW 、 1,5 kW 、 2,2 kW |
| Wysokość | 550 do 2000 stóp wysokości z | Moc | A (jednofazowa AC110V) B (jednofazowy AC200V) C (trójfazowy AC200V/380V) |
| Prędkość | Ustalona prędkość | Pasek | Poli (N-winylowa karbazol) |
| Zdolność | 200 kg/zestaw (po rozproszonym obciążeniu poziomym) |
Jako wyroby w torbie, prosimy o 40% wybicia danych o zdolnościach.
Prędkość paska
| Stosunek | Nr prędkości | Stała prędkość 50/60 (Hz) (m/min | Nr prędkości | Zmienna prędkość 50 Hz (m/min) |
| 1/2040 | T1 | 2.6/3.0 | H1 | 1.0-2.6 |
| 1/2020 | T2 | 2.8/3.5 | H2 | 1.1-2.8 |
| 1/2000 | T3 | 3,5/4.2 | H3 | 1,4 ~ 3,5 |
| 1/90 | T4 | 4.0/6.7 | H4 | 1,6 ~ 4,0 |
| 1/80 | T5 | 4.4/5.4 | H5 | 1.8-4.4 |
| 1/70 | T6 | 4.9/5.8 | H6 | 2.0-4,9 |
| 1/60 | T7 | 5.8/7.0 | H7 | 2.3-5.8 |
| 1/50 | T8 | 7.0/8.4 | H8 | 2,8 ~ 7,0 |
| 1/45 | T9 | 7.7/9.3 | H9 | 3.1 ~ 7.7 |
| 1/40 | T10 | 8.6/10.5 | H10 | 3,4 ~ 8.6 |
| 1/30 | T11 | 11.6/14.0 | H11 | 4.7 ~ 11,6 |
| 1/25 | T12 | 14.0/16,8 | H12 | 5.6 ~ 14,0 |
| 1/20 | T13 | 17.5/21.0 | H13 | 7.0-17.5 |
| 1/15 | T14 | 23.3/28.0 | H14 | 9.3 ~ 23,3 |
| 1/10 | T15 | 35.0/41,9 | H15 | 14.0-35.0 |
| 1/5 | T16 | 70,0/83,8 | H16 | 28.0-70.1 |
Obliczanie prędkości stałej prędkości: prędkość obrotowa 1500/1800 obr/min (50/60 Hz), wałek napędowy ф82,3, Wydajność jazdy: 95%
Obliczanie prędkości zmiennej prędkości: prędkość obrotowa 2000 obr / min (50; 60 Hz), wałek napędowy ф82,3, Wydajność jazdy: 95%
Rysunek
Dlaczego konserwacja przenośnika rolkowego ma bezpośredni wpływ na żywotność systemu ...
Przeczytaj więcejCo sprawia, że przenośnik rolkowy jest naprawdę wytrzymały? Przenośnik rolkowy do duży...
Przeczytaj więcejCo to są przenośniki rolkowe i dlaczego typ ma znaczenie? Przenośniki rolkowe t...
Przeczytaj więcejDlaczego przenośniki rolkowe pozostają podstawą transportu materiałów Przenośniki ro...
Przeczytaj więcejSystemy przenośnikowe codziennie przewożą miliony ton materiałów przez fabryki, magaz...
Przeczytaj więcejWprowadzanie kunsztu w przyszłość.
No.60, Zhenhu North Road, Hudai Town, Binhu District, Wuxi 214100, Chiny







